Thang máy bệnh viện
Thang máy bệnh viện được thiết kế nhằm đáp ứng các yêu cầu vận chuyển bệnh nhân hay các thiết bị y tế trong bệnh viện. Không gian buồng thang phù hợp với các loại giường bệnh. Được thiết kế và chế tạo đặc biệt nhẹ nhàng, êm ái, nhằm đảm bảo an toàn tuyệt đối cho bệnh nhân.
Đặc tính chung
- Tải trọng: từ 350-2.000kg.
- Vận tốc từ 30-90m/p.
- Cabin: khác với thang máy tải hàng hoặc thang máy chung cư, thang máy bệnh viện cần có diện tích cabin rộng để chứa đủ cáng đẩy đưa bệnh nhân, y tá-điều dưỡng đi kèm.
- Tốc độ: hệ thống thang máy trong bệnh viện phục vụ rất lớn cho quá trình di chuyển bệnh nhân với yêu cầu cần phải nhẹ nhàng, chậm rãi, ổn định, giảm tốc nhằm không gây đau đớn, làm vết thương thêm trầm trọng. Vì vậy, thang máy trong bệnh viện phải đảm bảo tốc độ ổn định, không rung lắc.
- Ánh sáng: Thường bệnh nhân được di chuyển trong tư thế nằm. Vì vậy, ánh sáng trong cabin cần dịu nhẹ, không gây chói mắt, lóa mắt, không quá tối để tránh cảm giác âm u, làm tinh thần bệnh nhân thêm hoảng sợ, khó chịu.
Những ưu điểm
Tính an toàn của thang bệnh viện
Thang máy chở bệnh nhân được thiết kế và chế tạo đặc biệt để đảm bảo an toàn tuyệt đối trong quá trình di chuyển bệnh nhân. Tiêu chí an toàn phải được đặt lên hàng đầu bởi đây là loại thang máy đặc thù dùng để vận chuyển bệnh nhân, vật tự y tế.
Thang bệnh viện thường được trang bị thêm lan can mềm để chống va đập trong quá trình vận chuyển, phòng những sự cố xảy ra, vận hành không ồn. Ngoài ta cần dừng tầng chính xác và không gây xóc làm ảnh hưởng đến tâm lý của bệnh nhân.
Thang ứng dụng công nghệ hiện đại
Sử dụng kỹ thuật điều khiển tiên tiến điều áp, điều tốc bằng biến tần. Hệ thống điện hoạt động ổn định là tiêu chí đầu tiên và cũng là quan trọng nhất trong toàn bộ thang máy.
Chất lượng cao
Như đã đề cập ở trên, thang máy bệnh viện là một loại thang đặc thù, chuyên sử dụng trong các bệnh viện. Vì vậy, yêu cầu nghiêm ngặt về công năng, hiệu năng và chất lượng sản phẩm.Tính chính xác cao. Hệ thống điều khiển linh hoạt, thông minh, xử lý thông tin, lệnh gọi tầng một cách nhanh chóng và logic. Đảm bảo phục vụ tốt nhất nhu cầu đi lại của khách hàng trong thời gian ngắn.
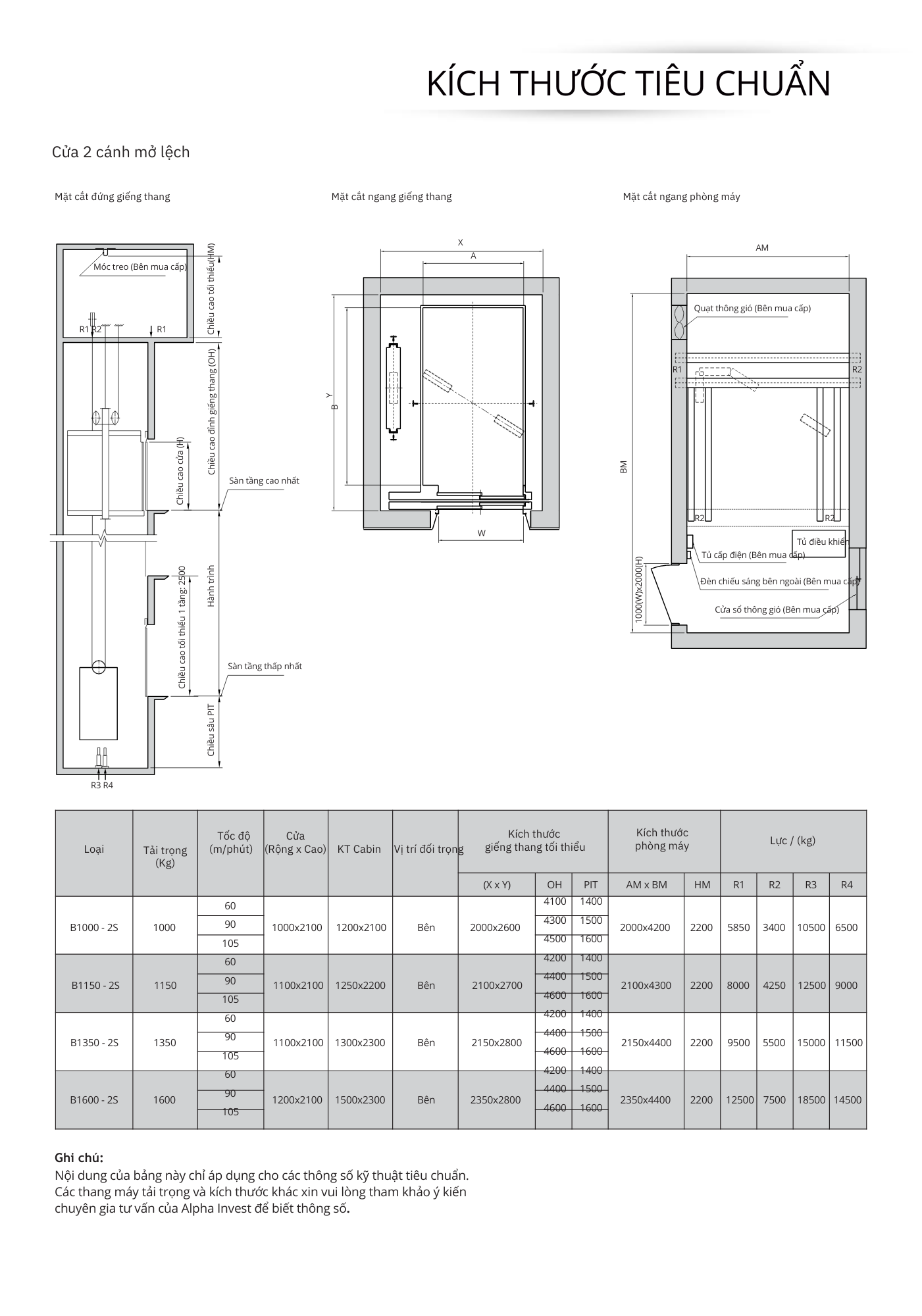
Những thông số cơ bản của thang máy
CƠ CHẾ HOẠT ĐỘNG CHẬM RÃI-CHẮC CHẮN
Những đặc điểm chính kể trên, các công ty lắp đặt thang máy còn thừa nhận, họ cung cấp các sản phẩm của mình cho bệnh viện với những đặc điểm phù hợp với tính chất của bệnh nhân nên có sự chuyên biệt rõ ràng. Cụ thể:
- Thời gian đóng mở cửa: lâu hơn so với thang máy gia đình và các dòng còn lại vì quá trình vận chuyển cabin, xe thuốc,… vào thang máy cần nhẹ nhàng, mất nhiều thời gian nhằm tránh làm đau hay bệnh nhân hay gây đổ vỡ thuốc men.
- Cabin thiết kế chuyên biệt: Để người già, trẻ em có thể dễ dàng đứng vững chãi, không bị mất thăng bằng khi thang máy di chuyển, thang máy bệnh viện còn có tay vịn chắc chắn, thuận tiện.
- Ngoài ra, để không làm chậm trễ quá trình chuyển bệnh nhân đến phòng cấp cứu hoặc các khoa khác, thang máy bệnh viện còn có chế độ bỏ qua các tầng không liên quan. Khách hàng hoàn toàn có thể có cài đặt lịch trình thuận tiện theo đúng ý muốn.
Công Ty Alpha Invest có sản phẩm công nghệ cao về thang máy vận chuyển hàng, thang máy chuyển giường bệnh viện, thang máy tham quan, thang máy vận chuyển phương tiện đi lại và thang cuốn với các dịch vụ như sản xuất, bán hàng, lắp đặt, bảo dưỡng và nâng cấp.




